Ascenseurs de stationnement à grande hauteur

Pour voir l'intégralité du programme de livraison, il suffit de défiler vers le bas, pour agrandir l'image il suffit de cliquer dessus

----------------------------------------------------------------------------------------------------------------------------------------------------------------------

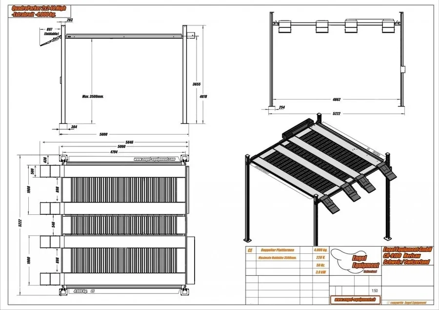
ENGEL-HR4035 ; PONT ÉLÉVATEUR DE PARKING DOUBLE À 4 COLONNES (4.000KG.) HAUTE LEVÉE.


FORME DE PLATEAU DOUBLE DE PLUS DE 5 MÈTRES DE LONG ! AVEC 4.000 KG ET UNE HAUTEUR DE MOYEU DE 3500 MM

ENGEL-HR4035 ; Elévateur de parking double à 4 colonnes à haute levée :

 

Il s'agit d'un de nos parkings élévateurs à 4 colonnes. Avec ce modèle, vous avez l'avantage de pouvoir garer des véhicules doubles en hauteur sur les places inférieures et de pouvoir garer des véhicules plus hauts tels que des camping-cars, des bateaux ou des camions.

Si vous n'avez pas la possibilité d'agrandir votre bâtiment en largeur ou en longueur, il vous suffit de monter en hauteur avec ces élévateurs de parking QuadroParker.

La partie centrale complète de la plate-forme est étanche à l'eau et aux liquides, ce qui empêche les gouttes de s'écouler vers le véhicule ou la voiture de collection garée en dessous.

Il existe également un modèle d'installation extérieure galvanisé à chaud, tous les modèles sont équipés d'une rampe d'accès fixe.

 

Chaque plateforme élévatrice de parking est fabriquée, transportée, installée et livrée prête à l'emploi par nos soins.

Données techniques :


Capacité de charge : 4.000 kg. ! !!
Hauteur de la colonne : 3900 mm.
Hauteur de levage mesurée sous la double plate-forme : 3500 mm.
Largeur de la plate-forme : 5000mm. (utilisable)
Peinture en poudre, ou galvanisé contre supplément.
Couleurs standard : Anthracite RAL 7016 + orange RAL 2004 (autres couleurs possibles moyennant un supplément).
Verrouillage électrique 24 volts.
Entraînement : 400 Volt/50Hz (3-phase)
Poids propre : 1.885kg.

 

Prix sur demande.

--------------------------------------------------------------------------------------------------------------------

Contactez-nous

---------------------------------------------------------------------------------------------

 

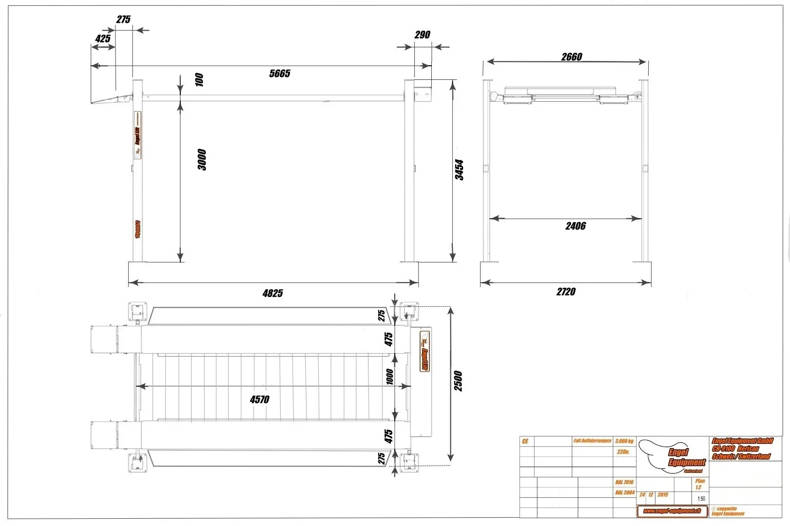
ENGEL-HR30.30 ; PLATE-FORME ÉLÉVATRICE À 4 COLONNES POUR PARC ET TRANSPORT (3.000KG.)

ENGEL-HR30.30 ; Ponts élévateurs à haute levée à 4 colonnes pour le transport et le stationnement :

 

Il s'agit d'un de nos monte-voitures à 4 colonnes. Avec ce modèle, vous avez l'avantage de pouvoir garer des véhicules doubles en hauteur sur les places inférieures, ce qui permet de garer des véhicules plus hauts comme des camping-cars, des bateaux ou des camions.

si vous n'avez pas la possibilité d'agrandir votre bâtiment en largeur ou en longueur, il vous suffit de monter "en hauteur" avec ces élévateurs de parking.

La partie centrale complète de la plateforme est étanche à l'eau et aux liquides, ce qui empêche les gouttes de tomber sur le véhicule garé en dessous ou sur la voiture de collection.

Il existe également un modèle d'installation extérieure qui est galvanisé à chaud, tous les modèles sont équipés d'une rampe d'accès fixe.

 

Chaque plateforme élévatrice de parking est fabriquée, transportée, installée et livrée prête à l'emploi par nos soins.

Données techniques :


Capacité de charge : 3.000 kg.
Hauteur de la colonne : 3454 mm.
Hauteur de levage mesurée sous la double plate-forme : 3000 mm.
Largeur de la plate-forme : 2200 mm. (utilisable)
Largeur de passage : 2406mm.
Longueur de la plate-forme : 4570mm. (Utilisable)
Peinture en poudre, ou galvanisé contre supplément.
Couleurs standard : Anthracite RAL 7016 + orange RAL 2004 (autres couleurs possibles moyennant un supplément).
Verrouillage électrique 24 volts.
Entraînement : 220 Volt/50Hz (1-phase) , 2.2kW.
Poids propre : 1.078kg.

 

Prix sur demande.

--------------------------------------------------------------------------------------------------------------------

Contactez-nous

---------------------------------------------------------------------------------------------

 

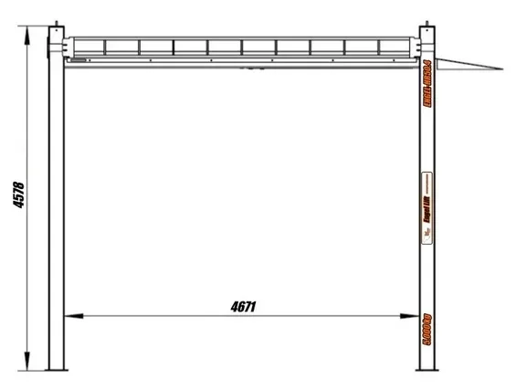
ENGEL-HR50.4 ; PLATE-FORME ÉLÉVATRICE À 4 COLONNES POUR PARC ET TRANSPORT (5.000KG.)

ENGEL-HR50.4 ; Ponts élévateurs à haute levée à 4 colonnes pour le transport et le stationnement :

 

Il s'agit d'un de nos parkings élévateurs à 4 colonnes. Avec ce modèle, vous avez l'avantage de pouvoir garer des véhicules doubles en hauteur sur les places inférieures et de pouvoir garer des véhicules plus hauts tels que des camping-cars, des bateaux ou des camions.

Si vous n'avez pas la possibilité d'agrandir votre bâtiment en largeur ou en longueur, il vous suffit de monter en hauteur avec ces élévateurs de parking QuadroParker.

La partie centrale complète de la plate-forme est étanche à l'eau et aux liquides, ce qui empêche les gouttes de s'écouler vers le véhicule ou la voiture de collection garée en dessous.

Il existe également un modèle d'installation extérieure galvanisé à chaud, tous les modèles sont équipés d'une rampe d'accès fixe.

 

Chaque plateforme élévatrice de parking est fabriquée, transportée, installée et livrée prête à l'emploi par nos soins.

 

Données techniques :


Capacité de charge : 5.000 kg. ! !!
Hauteur de la colonne : 4578 mm.
Hauteur de levage mesurée sous la double plate-forme : 4000 mm.
Largeur de la plate-forme : 2573mm. (utilisable)
Largeur de passage : 3288mm.
Longueur de la plate-forme : 4974mm. (Utilisable)
Peinture en poudre, ou galvanisé contre supplément.
Couleurs standard : Anthracite RAL 7016 + orange RAL 2004 (autres couleurs possibles moyennant un supplément).
Verrouillage électrique 24 volts.
Entraînement : 400 Volt/50Hz (3-phase) , 4.0kW.
Poids propre : 1.992kg.

 

Prix sur demande.

--------------------------------------------------------------------------------------------------------------------

Contactez-nous

---------------------------------------------------------------------------------------------

 

ENGEL SH-3500 : PLATEFORME ÉLÉVATRICE DE TRANSPORT À CISEAUX À HAUTE LEVÉE.

Engel SH-3500 : Pont élévateur à ciseaux à haute levée pour le transport.

 

Il s'agit d'un de nos élévateurs à ciseaux de transport / élévateurs à ciseaux à haute levée, avec un système de levage breveté, ce qui garantit une synchronisation parfaite des ciseaux lors de la levée et de la descente.

Ce pont élévateur de transport est également très bien adapté à la salle d'exposition de n'importe quel concessionnaire automobile, afin de doubler la surface d'accès, disponible en différentes largeurs de plate-forme et hauteurs de levage, afin de pouvoir transporter n'importe quel véhicule ou objet. Un panneau de commande spécial (salle d'exposition) est également disponible.

La partie centrale complète du chemin de roulement est fermée et munie d'une barrière lumineuse pour éviter l'abaissement accidentel de la plate-forme, ce pont élévateur de transport à haute levée doit être installé dans une fosse.

 

Ces plateformes élévatrices de transport sont proposées en tant que projets individuels et sont spécialement construites dans notre usine en tant que projets individuels.

 

Chaque plateforme de transport est fabriquée, transportée, installée et livrée prête à l'emploi par nos soins.

 

Données techniques :


Capacité de charge : 3.500 kg. ! !! (sur demande, des charges plus élevées sont possibles)
Hauteur de levage mesurée sous la plate-forme : Jusqu'à 3.200 mm. (ensuite, il s'agit d'une construction de plateforme à double ciseaux).
Longueur de la plate-forme : selon le projet
Largeur de la plate-forme : selon le projet
Peinture en poudre
Couleurs standard : Anthracite RAL 7016 + orange RAL 2004 (autres couleurs possibles moyennant un supplément).
Verrouillage électrique 24 volts.
Entraînement : selon le projet
Poids propre : selon le projet.

 

Projet Travail, prix sur demande.

​​​​​​​-----------------------------------------------------------------------------------------------------------------

Contactez-nous

---------------------------------------------------------------------------------------------

 

ES-3000 : ÉLÉVATEUR À CISEAUX POUR PARKING ÉLÉVATEUR À HAUTE LEVÉE POUR TRANSPORT

ES-3000 : Pont élévateur de parking à ciseaux à haute levée, Pont élévateur de transport à haute levée.

 

Le ES-3000 est un développement ultérieur basé sur le modèle SP-2700 de ponts élévateurs de parking à ciseaux, également équipé de notre système de levage E.S.H.S qui garantit une synchronisation parfaite des ciseaux lors de la montée et de la descente.

L'ES-3000 est conçu comme un pont élévateur de parking avec la possibilité de servir de "pont élévateur de transport" après le deuxième étage, et de garer un véhicule de grande taille (p.ex. camping-car, camionnette ou petit camion) en dessous.

Le pont élévateur "standard" a une capacité de charge de 2.500 kg, et une course maximale de 3 mètres.

Nous construisons également ces ponts élévateurs à ciseaux en double ciseaux avec une course maximale de 6 mètres.

et aussi en triple ciseaux, mais alors en double avec une course de 9 mètres maximum.

Données techniques :


Capacité de charge ; 2.500 kg / 3.000 kg sur demande
Hauteur de levage du bord supérieur de la plate-forme : max. 3.000 mm.
Hauteur de passage sous la plate-forme : 2.650 mm.
Largeur de passage : 2.150 mm, sur demande jusqu'à 2.600 mm.
Longueur de la plate-forme : 5130 mm. (Utilisable 4576mm)
Largeur de la plate-forme : 2.450 mm, sur demande possible jusqu'à 2.950 mm.
Entraînement : 220V/50Hz ou 380 V/50Hz.


Prix sur demande.

-------------------------------------------------------------------------------------------------------------------

Contactez-nous