Ponts de parking à 1 colonne

Pour voir l'intégralité du programme de livraison, il suffit de défiler vers le bas, pour agrandir l'image il suffit de cliquer dessus

----------------------------------------------------------------------------------------------------------------------------------------------------------------------

ENGEL-1223.185 & 1223.210 ; PONT ÉLÉVATEUR DE PARKING À 1 COLONNE SANS CADRE DE SOL !

ENGEL-1223.185 Elévateurs de parking à une colonne.
ENGEL-1223.210 Elévateurs de parking à une colonne.


Il s'agit de notre élévateur de parking PREMIUM à 1 colonne. Avec ce modèle, vous avez l'avantage de pouvoir monter la plate-forme à gauche ou à droite. (Construction identique)

Ceci présente l'avantage que les plates-formes élévatrices de parking peuvent être installées à l'envers. En outre, elles peuvent être montées à gauche ou à droite, ce qui permet de les installer en face l'une de l'autre sans colonne centrale !

La partie centrale complète de la plate-forme à double voie est amovible pour les travaux de service et d'entretien de votre véhicule ou de votre voiture de collection.

Chaque plate-forme élévatrice de parking est fabriquée, transportée, installée et livrée prête à l'emploi par nos soins.

 

Données techniques :


Capacité de charge : 2.300 kg. ! !!
Hauteur de levage mesurée sous la plate-forme : pour 1223.185 = 1850mm, pour 1223.210 = 2100mm.
Longueur de la plate-forme : 3450mm (utilisable).
Largeur de la plate-forme : 2000mm. (utilisable)
Peinture en poudre
Couleurs standard : Anthracite RAL 7016 + orange RAL 2004 (autres couleurs possibles moyennant supplément).
Verrouillage électrique 24 volts.
Entraînement : 220 Volt/50Hz (1-phase)
Poids propre : 1.060kg / 1.123 kg.

 

Prix sur demande. 

-------------------------------------------------------------------------------------------------------------------

Contactez-nous

---------------------------------------------------------------------------------------------

 

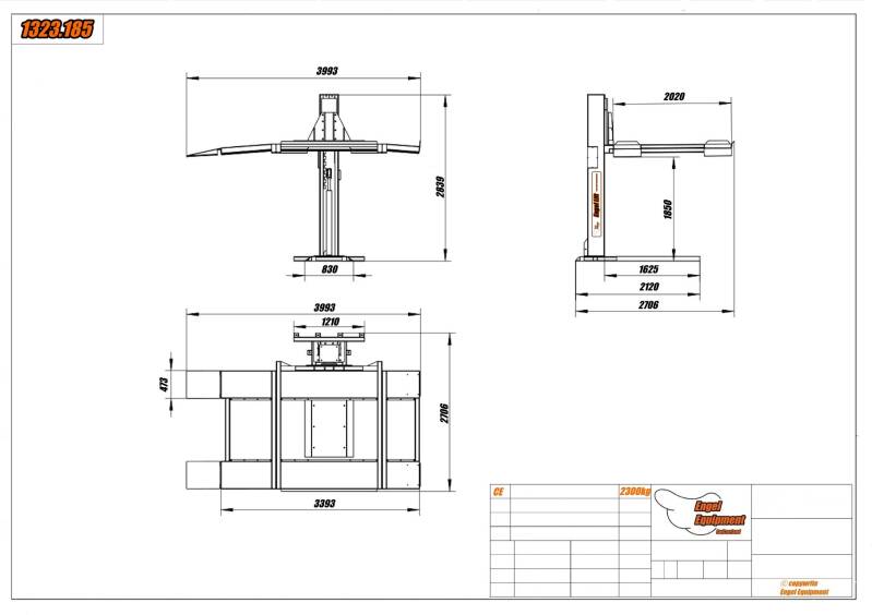
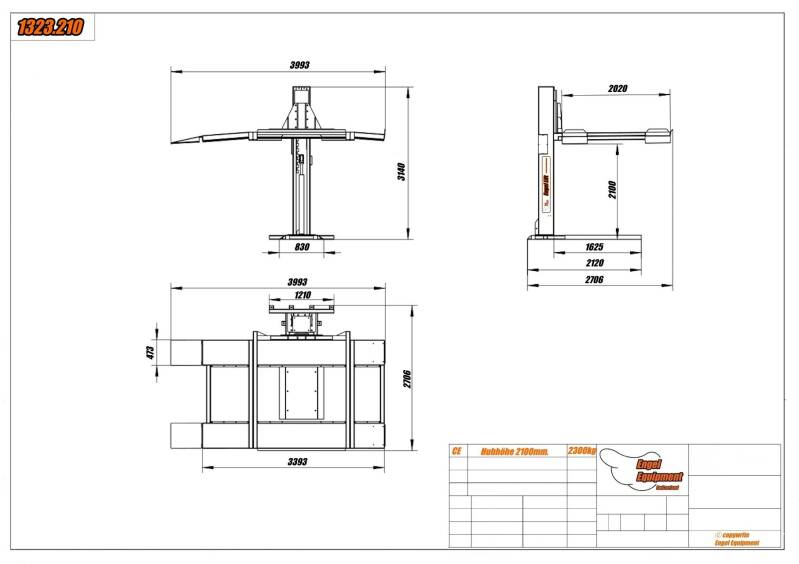
1323.185 & 1323.210 ; PONT ÉLÉVATEUR DE PARKING À 1 COLONNE 

 

1323.185 Ascenseurs de stationnement à une colonne :

1323.210 Ascenseurs de stationnement à une colonne:

 

Il s'agit de l'un de nos ascenseurs de stationnement à 1 colonne, avec ce modèle, vous avez l'avantage que la plate-forme peut être conduite à gauche ou à droite. (identique) Cela présente l'avantage que les ascenseurs de stationnement peuvent être installés à l'envers. Ils conviennent également pour un montage à gauche ou à droite, ils conviennent donc également pour un montage opposé sans colonnes au milieu !. Toute la section centrale de la plate-forme à double étage est amovible pour les travaux d'entretien et de maintenance de votre véhicule ou voiture de collection. Il existe également un modèle extérieur galvanisé à chaud, tous les modèles sont équipés d'une rampe amovible. Chaque ascenseur de stationnement est fabriqué, transporté, installé et livré prêt à l'emploi par nos soins.  Des modifications et d'autres dimensions sont également possibles dans une mesure limitée sur demande.

 

Spécifications techniques:

  • ​​​​​​​Capacité de charge : 2 300 kg. !!!
  • Hauteur de levage mesurée SOUS la plateforme : à 1323.185 = 1850mm., à 1323.210 = 2100mm.
  • Longueur de la plate-forme : 3393 mm (utilisable)
  • Largeur plateforme : 2020mm. (utilisable)
  • revêtement en poudre Couleurs standard : anthracite RAL 7016 + orange RAL 2004 (autres couleurs possibles moyennant supplément.)
  • Verrouillage électrique 24 volts.
  • Entraînement : 220 volts/50 Hz (monophasé)
  • Poids net : 1 073 kg. / 1 118 kg.

 

Tarifs sur demande.

​​​​​​-------------------------------------------------------------------------------------------------------------------

Contactez-nous

---------------------------------------------------------------------------------------------

 

1325.185L -& 1325.210L ; Ascenseur de stationnement à 1 colonne

 

1325.185L Ascenseur de stationnement à colonne unique, plate-forme fermée :

1325.210L Ascenseur de stationnement à colonne unique, plate-forme fermée :

 

Il s'agit de l'un de nos ascenseurs de stationnement à 1 colonne, avec ce modèle, vous avez l'avantage de disposer de 2 plates-formes différentes.Une fois une plate-forme pouvant être conduite d'un côté ou une plate-forme pouvant être conduite des deux côtés, les deux plates-formes sont de construction identique, ce qui présente l'avantage que les ascenseurs de stationnement peuvent être installés en miroir inversé . Ils conviennent également pour un montage à gauche ou à droite, ils conviennent donc également pour un montage opposé sans colonnes au milieu !. Toute la partie centrale de la plate-forme est complètement fermée et étanche à l'eau et aux liquides ! afin qu'il n'y ait pas de "fuite" du véhicule sur la plate-forme sous un véhicule en stationnement ou une voiture de collection. Il existe également un modèle extérieur galvanisé à chaud, tous les modèles sont équipés d'une rampe basse fixe. Chaque ascenseur de stationnement est fabriqué, transporté, installé et livré prêt à l'emploi par nos soins. Des modifications et d'autres dimensions sont également possibles dans une mesure limitée sur demande.

 

Spécifications techniques: ​​​​​​​

  • Capacité de charge : 2 500 kg. !!!
  • Hauteur de levage mesurée SOUS la plateforme : à 1325.185L = 1850mm., à 1325.210L = 2100mm.
  • Longueur de la plate-forme : 3400 mm (utilisable)
  • Largeur plateforme : 2000mm. (utilisable)
  • Hauteur de la plateforme : 110 mm.
  • Hauteur de colonne 1325.185L : 2960mm. Hauteur de colonne 1325.210L : 3140mm.
  • revêtement en poudre
  • Couleurs standard : anthracite RAL 7016 + orange RAL 2004 (autres couleurs possibles moyennant supplément.
  • Verrouillage électrique 24 volts.
  • Entraînement : 220 volts/50 Hz (monophasé)
  • Poids propre : 1 021 kg. / 1 066 kg.

 

Tarifs sur demande. ​​​​​​

------------------------------------------- ------------------------------------------------- - ----------------------

Contactez-nous

---------------------------------------------------------------------------------------------

 

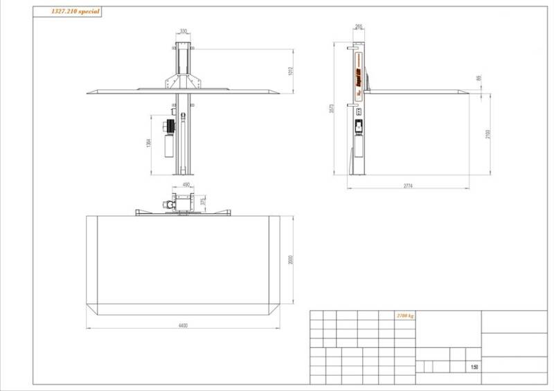
1327.185 - & 1327.210 ; Ascenseur de stationnement spécial à 1 colonne / ascenseurs de stationnement

-Montage mural.

 

1327.185 Spécial ; Ponts élévateurs à une colonne, plate-forme fermée, montage mural :

1327.210 spécial ; Ponts élévateurs à une colonne, plate-forme fermée, montage mural :

 

Il s'agit de l'un de nos ascenseurs de stationnement à 1 colonne, avec ce modèle vous avez l'avantage d'être complètement dégagé du sol sous la plate-forme ! La colonne est montée sur le mur au lieu d'être sur le sol à l'aide d'un cadre de sol. (Ingénieux pour les parkings souterrains, les compartiments de sous-sol ou les espaces restreints mais nécessite un mur en acier-béton pour l'ancrage) 2 plates-formes différentes sont disponibles., Une fois une plate-forme qui peut être conduite d'un côté ou une plate-forme qui peut être conduite sur TROIS CÔTÉS Les deux plates-formes sont de construction identique, ce qui présente l'avantage que les ascenseurs de stationnement peuvent être installés en miroir inversé. Ils conviennent également pour un montage à gauche ou à droite, ils conviennent donc également pour un montage opposé sans colonnes au milieu. !. Toute la partie centrale de la plate-forme est complètement fermée et étanche à l'eau et aux liquides ! afin qu'il n'y ait pas de "fuite" sous le véhicule garé ou la voiture ancienne du véhicule à la plate-forme avec SEULEMENT 85 mm de sa propre hauteur. Chaque ascenseur de stationnement est fabriqué, transporté, installé et livré prêt à l'emploi par nos soins. Des modifications et d'autres dimensions sont également possibles dans une mesure limitée sur demande.

 

Spécifications techniques:

  • ​​​​​​​Capacité de charge : 2 700 kg. !!!
  • Hauteur de levage mesurée SOUS la plateforme : à 1327.185 = 1850mm., à 1327.210 = 2100mm.
  • Longueur de la plate-forme : 3400 mm (utilisable)
  • Largeur plateforme : 2000mm. (utilisable)
  • Hauteur de la plateforme : 85 mm.
  • Hauteur de colonne 1325.185L : 2960mm. Hauteur de colonne 1325.210L : 3140mm.
  • revêtement en poudre
  • Couleurs standard : anthracite RAL 7016 + orange RAL 2004 (autres couleurs possibles moyennant supplément.)
  • Verrouillage électrique 24 volts.
  • Entraînement : 220 volts/50 Hz (monophasé)
  • Poids propre : 1 125 kg. / 1 196 kg.

 

Tarifs sur demande.

​​​​​​------------------------------------------- - ------------------------------------------------- - ---------------------

Contactez-nous

---------------------------------------------------------------------------------------------

 

1327.185BRPA-& 1327.210BRPA ; Ascenseur parking spécial 1 poste -Unités autonomes BRPA

 

1327.185 BRPA ; Ponts élévateurs à une colonne, plate-forme fermée, montage autonome :

1327.210 BRPA ; Ponts élévateurs à une colonne, plate-forme fermée, montage autonome :

 

Il s'agit de l'un de nos ascenseurs de stationnement à 1 pilier, le pilier est fixé au sol à l'aide d'un cadre de plancher très bas. (Ingénieux pour les parkings souterrains, les compartiments de sous-sol ou les espaces restreints, une plate-forme avec une partie centrale intégrée qui se traduit par un petit renflement qui peut être franchi mais une plate-forme qui peut être conduite sur TROIS CÔTÉS ! Toute la partie centrale de la plate-forme est complètement fermée et étanche à l'eau et aux liquides ! afin qu'il n'y ait pas de "fuite" sous le véhicule garé ou la voiture ancienne du véhicule à la plate-forme avec SEULEMENT 85 mm + (80 mm) de hauteur propre. Chaque ascenseur de stationnement est fabriqué, transporté, installé et livré prêt à l'emploi par nos soins

 

Spécifications techniques:

  • ​​​​​​​Capacité de charge : 2 700 kg. !!!
  • Hauteur de levage mesurée SOUS la plateforme : à 1327.185BRPA = 1850mm., à 1327.210BRPA = 2100mm.
  • Longueur de la plate-forme : 3400 mm (utilisable)
  • Largeur plateforme : 2000mm. (utilisable) Hauteur de la plateforme : 85 mm.
  • Hauteur de colonne 1325.185BRPA : 3096mm.
  • Hauteur de colonne 1325.210BRPA : 3346 mm.
  • revêtement en poudre
  • Couleurs standard : anthracite RAL 7016 + orange RAL 2004 (autres couleurs possibles moyennant supplément.
  • Verrouillage électrique 24 volts.
  • Entraînement : 220 volts/50 Hz (monophasé)
  • Poids propre : 1 205 kg. / 1 279 kg.

 

Tarifs sur demande.

​​​​​​------------------------------------------- - ------------------------------------------------- - ---------------------

Contactez-nous