Ponts de parking à 4 colonnes
Pour voir l'intégralité du programme de livraison, il suffit de défiler vers le bas, pour agrandir l'image il suffit de cliquer dessus
----------------------------------------------------------------------------------------------------------------------------------------------------------------------
ENGEL-DP4.10 ; DOUBLE PONT ÉLÉVATEUR DE PARKING À 4 COLONNES (10.000KG.)
ENGEL-DP4.10 ; Ascenseur de stationnement double à 4 colonnes :
Il s'agit de l'un de nos ascenseurs de stationnement doubles à 4 colonnes, avec ce modèle, vous avez l'avantage de pouvoir conduire sous terre, donc spécialement développé pour l'installation en sous-sol, cette version est également disponible en tant que plate-forme de stationnement simple (ENGEL-SP2.5)
Si vous n'avez pas la possibilité d'étendre votre garage en largeur ou en longueur, descendez simplement "souterrain" avec ces ascenseurs de parking en sous-sol.
Vous avez un large choix en matière de hauteurs ou de largeurs de levage, autant de variantes. et options d'installation.
Toute la partie centrale de la plate-forme est étanche à l'eau et aux liquides, de sorte qu'elle ne coule pas du véhicule ou de la voiture ancienne garée en dessous.
Il existe également un modèle extérieur galvanisé à chaud, tous les modèles sont équipés d'une rampe fixe. Chaque ascenseur de stationnement est fabriqué, transporté, installé et livré prêt à l'emploi par nos soins
Spécifications techniques:
Capacité de charge : 4x 2 500 kg. !!!
Hauteur colonne avant : 3150 - à 3950mm.
Hauteur colonne arrière : 1650 - à 2050mm.
Hauteur de levage mesurée SOUS la plateforme : 1650 - 2050mm.
Longueur plateforme : 5100 - à 5300mm (utilisable)
Largeur plateforme : 4600mm. -jusqu'à 5400mm (utilisable)
Revêtement en poudre ou galvanisé moyennant un supplément Couleurs standard : anthracite RAL 7016 + orange RAL 2004 (autres couleurs possibles moyennant supplément).
Verrouillage électrique 24 volts. Entraînement : 220 volts/50 Hz (monophasé)
Poids propre : 1973 kg.
Tarifs sur demande.
-------------------------------------------------------------------------------------------------------------------
Contactez-nous
---------------------------------------------------------------------------------------------
ENGEL-SP2.5 ; PONT ÉLÉVATEUR DE PARKING À 4 COLONNES (5.000KG.)
ENGEL-SP2.5 ; Ascenseurs de stationnement à 4 colonnes :
Il s'agit de l'un de nos ascenseurs de stationnement à 4 colonnes, avec ce modèle, vous avez l'avantage de pouvoir conduire sous terre,
donc spécialement développé pour une installation en sous-sol, Si vous n'avez pas la possibilité d'étendre votre garage en largeur ou en longueur, descendez simplement "souterrain" avec ces ascenseurs de parking en sous-sol.
Vous avez un large choix en matière de hauteurs ou de largeurs de levage, autant de variantes. et options d'installation.
Toute la partie centrale de la plate-forme est étanche à l'eau et aux liquides, de sorte qu'elle ne coule pas du véhicule ou de la voiture ancienne garée en dessous. Il existe également un modèle extérieur galvanisé à chaud, tous les modèles sont équipés d'une rampe fixe.
Chaque ascenseur de stationnement est fabriqué, transporté, installé et livré prêt à l'emploi par nos soins
Spécifications techniques:
Capacité de charge : 2x 2 500 kg. !!!
Hauteur colonne avant : 3150 - à 3950mm.
Hauteur colonne arrière : 1650 - à 2050mm.
Hauteur de levage mesurée SOUS la plateforme : 1650 - 2050mm.
Longueur plateforme : 5100 - à 5300mm (utilisable)
Largeur plateforme : 2300mm. -jusqu'à 2700mm (utilisable)
Revêtement en poudre ou galvanisé moyennant un supplément Couleurs standard : anthracite RAL 7016 + orange RAL 2004 (autres couleurs possibles moyennant supplément).
Verrouillage électrique 24 volts.
Entraînement : 220 volts/50 Hz (monophasé)
Poids propre : 1 105 kg.
Tarifs sur demande.
-------------------------------------------------- -------------------------------------------
Contactez-nous
---------------------------------------------------------------------------------------------
ENGEL-TRIPLEPARKER 3000 ; PONT ÉLÉVATEUR DE PARKING TRIPLE À 4 COLONNES (2X 3000KG)









Engel-TripleParker 3000 ; Elévateur de parking triple à 4 colonnes
C'est un de nos élévateurs de parking à 4 colonnes, vous avez l'avantage avec ce modèle de pouvoir garer 3 véhicules sur l'espace d'un seul normalement, c'est pourquoi il est spécialement conçu pour les halls et les bâtiments avec un plafond un peu plus haut. Si vous n'avez pas la possibilité d'agrandir votre garage en largeur ou en longueur, alors montez simplement en hauteur avec ces élévateurs de parking triples. La partie centrale complète de la plateforme est étanche à l'eau et aux liquides, ce qui empêche les gouttes de tomber sur le véhicule garé en dessous ou sur la voiture de collection. Il existe aussi un modèle pour l'extérieur qui est galvanisé à chaud, tous les modèles sont équipés d'une rampe d'accès fixe. Chaque plate-forme élévatrice de parking est fabriquée, transportée, installée et livrée prête à l'emploi par nos soins
Spécifications techniques:
- Capacité de charge : 2x 3.000 kg. ! !!
- Hauteur des colonnes : 4028 mm.
- Hauteur de levage sous la plateforme 1 : 1800 mm.
- Hauteur de levage sous la plateforme 2 : 1600 mm.
- Largeur de la plate-forme : 2150 mm. (Utilisable)
- Peinture en poudre, ou galvanisée contre supplément
- Couleurs standard : Anthracite RAL 7016 + orange RAL 2004 (autres couleurs possibles contre supplément).
- Verrouillage électrique 24 volts.
- Entraînement : 220 Volt/50Hz (1-phase)
- Poids propre : 1.911kg.
Prix sur demande.
--------------------------------------------------------------------------------------------------------------------
Contactez-nous
---------------------------------------------------------------------------------------------
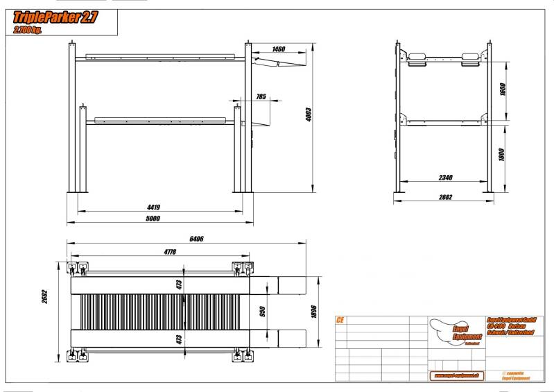
Engel Triple Parker 2.7 ; PONT ÉLÉVATEUR DE PARKING TRIPLE À 4 COLONNES (2X 2.700KG.)
Engel Triple Parker 2.7 ; Ascenseur de stationnement triple à 4 colonnes
Il s'agit de l'un de nos ascenseurs de stationnement à 4 colonnes, avec ce modèle, vous avez l'avantage de pouvoir garer 3 véhicules dans l'espace normalement d'un seul, donc spécialement développé pour les halls et les bâtiments avec un plafond légèrement plus haut.,
Si vous n'avez pas la possibilité d'agrandir votre garage en largeur ou en longueur, montez simplement en hauteur" avec ces triples élévateurs de stationnement.
Toute la partie centrale de la plate-forme est étanche à l'eau et aux liquides, de sorte qu'elle ne coule pas du véhicule ou de la voiture ancienne garée en dessous.
Il existe également un modèle extérieur galvanisé à chaud, tous les modèles sont équipés d'une rampe fixe.
Chaque ascenseur de stationnement est fabriqué, transporté, installé et livré prêt à l'emploi par nos soins
Spécifications techniques:
Capacité de charge : 2x 2 700 kg. !!!
Hauteur de colonne : 3853 mm.
Hauteur de levage mesurée SOUS la plate-forme 1 : 1800 mm.
Hauteur de levage mesurée SOUS la plate-forme 2 : 1450 mm.
Largeur plateforme : 2100mm. (utilisable)
Revêtement en poudre ou galvanisé moyennant un supplément Couleurs standard : anthracite RAL 7016 + orange RAL 2004 (autres couleurs possibles moyennant supplément).
Verrouillage électrique 24 volts.
Entraînement : 220 volts/50 Hz (monophasé)
Poids propre : 1 105 kg.
Tarifs sur demande.
-------------------------------------------------------------------------------------------------------------------
Contactez-nous
---------------------------------------------------------------------------------------------
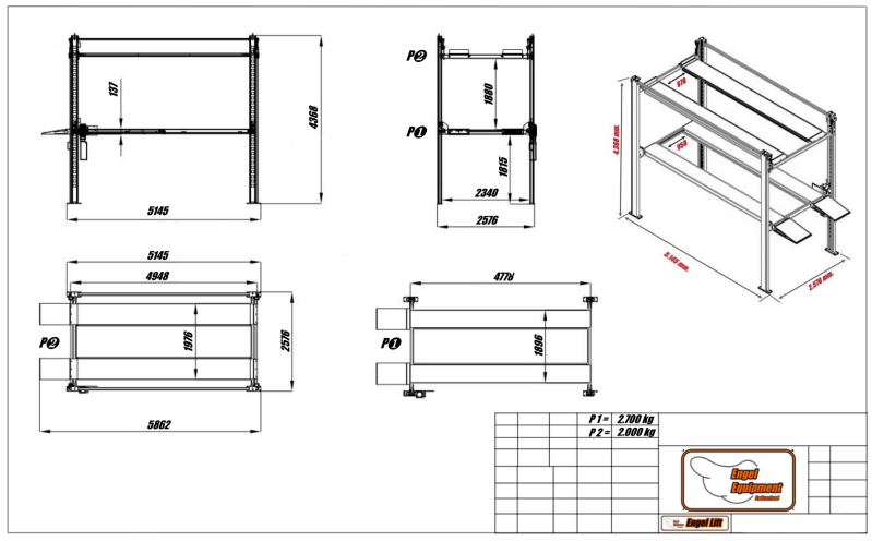
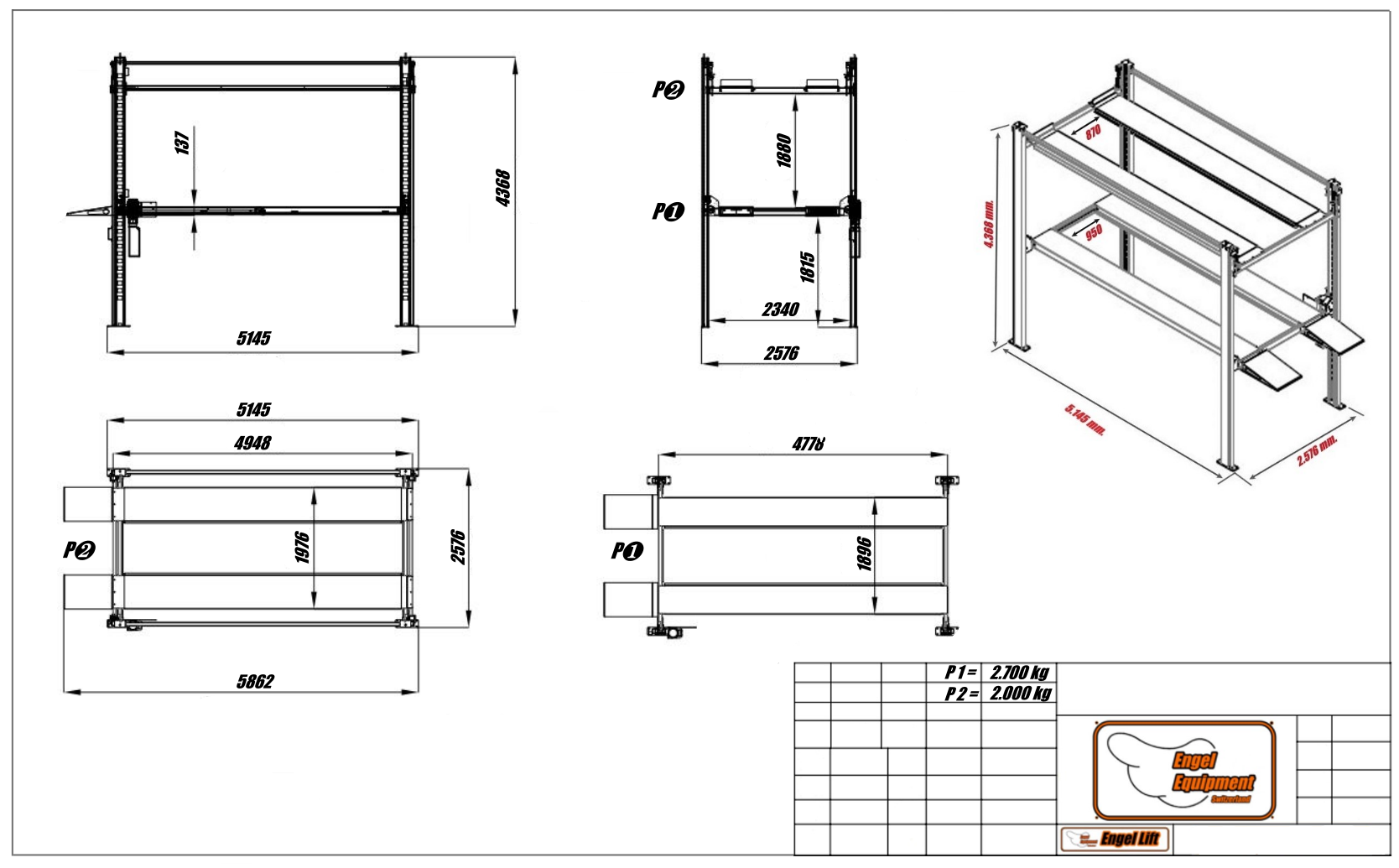
Engel Triple Parker 2027 ; PONT ÉLÉVATEUR DE PARKING TRIPLE À 4 COLONNES (1X 2.700KG -& 1x 2.000kg)
Engel-TripleParker 2027 ; Elévateur de parking triple à 4 colonnes
Il s'agit d'un de nos derniers élévateurs de parking à 4 colonnes, vous avez l'avantage avec ce modèle de pouvoir garer 3 véhicules sur l'espace normalement limité à un seul, c'est pourquoi il est spécialement conçu pour les halls et les bâtiments avec un plafond légèrement plus haut, Ce modèle 2027 est spécial parce qu'il a 2 plateformes qui "marchent" dans les mêmes colonnes, et que la plateforme inférieure a une double fonction qui amène la plateforme supérieure avec une capacité de charge maximale de 2.000 kg, vers le haut à la hauteur de levage souhaitée et la "dépose" dans un système de verrouillage spécial, ce qui permet une grande économie d'espace d'installation nécessaire, ainsi qu'une solution plus économique que les autres plateformes élévatrices Triple Parker à 4 colonnes.
Si vous n'avez pas la possibilité d'agrandir votre garage en largeur ou en longueur, il vous suffit de monter en hauteur avec ces élévateurs Triple Park. La partie centrale complète de la plate-forme est étanche à l'eau et aux liquides, ce qui empêche les gouttes de tomber sur le véhicule garé en dessous ou sur la voiture de collection. Il existe également un modèle galvanisé à chaud, tous les modèles sont équipés d'une rampe d'accès fixe.
Chaque plateforme élévatrice de parking est fabriquée, transportée, installée et livrée prête à l'emploi par nos soins.
Données techniques :
- Capacité de charge : 1x 2.700 kg. et 1x 2.000 kg. ! !!
- Hauteur des colonnes : 4368 mm.
- Hauteur de levage sous la plateforme 1 : 1880 mm.
- Hauteur de levage sous la plateforme 2 : 1815 mm.
- Largeur de la plate-forme : 1975mm. (utilisable)
- Peinture en poudre, ou galvanisé contre supplément.
- Couleurs standard : Anthracite RAL 7016 + orange RAL 2004 (autres couleurs possibles moyennant un supplément).
- Verrouillage électrique 24 volts.
- Entraînement : 220 Volt/50Hz (1-phase)
- Poids propre : 1.495kg.
Prix sur demande.
-------------------------------------------------------------------------------------------------------------------
Contactez-nous
---------------------------------------------------------------------------------------------
ENGELLIFT 3X2 TRIPLEPARKER ; PONT ÉLÉVATEUR TRIPLEPARKING À 4 COLONNES (4X 2.000KG -& 2X ILLIMITÉ.) * POUR 6 VÉHICULES *












ENGELLift 3x2 TripleParker 170/200 ; Pont élévateur de parking triple à 4 colonnes (4x 2.000kg -& 2x illimité.)
* pour 6 véhicules * Plateformes extra larges.
Avec l'Engellift 3x2 TripleParker 170 / 200 (plates-formes de levage extra larges ), vous pouvez garer 6 voitures sur un emplacement qui ne peut normalement accueillir que 2 voitures. La construction compacte de ce parking vous offre le plus d'espace possible. Le poids par véhicule peut aller jusqu'à 2000 kg et la hauteur peut varier.
C'est une installation de parking très appréciée pour garer des véhicules à 3 étages. Il offre une possibilité simple et très économique de créer 6 places de stationnement dépendantes l'une au-dessus de l'autre, convient pour le stationnement permanent, le valet parking, l'autopartage, le stockage de véhicules, etc.
La commande s'effectue facilement via un boîtier de commande.
La hauteur d'accès de la première plate-forme est de 16 cm et les rampes fournies sont suffisamment longues pour permettre aux voitures basses d'accéder au pont. La hauteur d'accès de la deuxième plate-forme (supérieure) est de 27 cm ; des rampes spéciales en aluminium pliables extra longues sont fournies pour permettre aux voitures basses d'accéder facilement à la deuxième plate-forme.
Sur demande, des plaques intermédiaires en aluminium peuvent être fournies pour créer une plate-forme entièrement fermée et résistante.
Chaque plate-forme élévatrice de parking est fabriquée, transportée, installée et livrée prête à l'emploi par nos soins.
Données techniques :
- Capacité de charge : 4x 2.000 kg. et 2x illimitée
- Hauteur des colonnes : 4438 mm.
- Hauteur de levage sous la plateforme 1 : 2000mm.
- Hauteur de levage sous la plate-forme 2 : 1700 mm.
- Largeur de passage : 5426mm. ! !
- Largeur de la plate-forme : 1954mm. (utilisable)
- Peinture en poudre, ou galvanisé contre supplément.
- Couleurs standard : Anthracite RAL 7016 + orange RAL 2004 (autres couleurs possibles moyennant un supplément).
- Verrouillage électrique 24 volts.
- Entraînement : 220 Volt/50Hz (monophasé) ou 400 Volt/50Hz (triphasé).
- Poids propre : 2.194kg.
Prix sur demande.
------------------------------------
ENGELLift 3x2 TripleParker 210/210 ; Pont élévateur de parking triple à 4 colonnes (4x 2.000kg -& 2x illimité.)
* pour 6 véhicules *
Avec l'Engellift 3x2 TripleParker 210 / 210, vous pouvez garer 6 voitures sur un emplacement qui n'en accueille normalement que 2. La construction compacte de ce parking vous offre le plus d'espace possible. Le poids par voiture peut atteindre 2000 kg et la hauteur peut varier jusqu'à 2100mm !
Une installation de parking très appréciée pour garer des véhicules à 3 étages. Il offre une possibilité simple et très économique de créer 6 places de stationnement dépendantes l'une au-dessus de l'autre, convient pour le stationnement permanent, le valet parking, l'autopartage, le stockage de véhicules, etc.
La commande s'effectue facilement via un boîtier de commande.
La hauteur d'accès de la première plate-forme est de 16 cm et les rampes fournies sont suffisamment longues pour permettre aux voitures basses d'accéder au pont. La hauteur d'accès de la deuxième plate-forme (supérieure) est de 27 cm ; des rampes spéciales en aluminium pliables extra longues sont fournies pour permettre aux voitures basses d'accéder facilement à la deuxième plate-forme.
Les 8 colonnes s'étendent sur toute la hauteur du parc et sont combinées pour une construction très robuste et stable.
Sur demande, des plaques intermédiaires en aluminium peuvent être fournies pour créer une plate-forme entièrement fermée et résistante.
Chaque plate-forme élévatrice de parking est fabriquée, transportée, installée et livrée prête à l'emploi par nos soins.
Données techniques :
- 8x colonnes pleines combinées pour une stabilité EXTRA.
- Capacité de charge : 4x 2.000 kg. et 2x illimitée
- Hauteur des colonnes : 4438 mm.
- Hauteur de levage sous la plateforme 1 : 2100 mm.
- Hauteur de levage sous la plate-forme 2 : 2100 mm.
- Largeur de passage : 4456 mm. ! !
- largeur de chaque plate-forme : 2100mm. (utilisable)
- Peinture en poudre, ou galvanisé contre supplément.
- Couleurs standard : Anthracite RAL 7016 + orange RAL 2004 (autres couleurs possibles moyennant un supplément).
- Verrouillage électrique 24 volts.
- Entraînement : 220 Volt/50Hz (monophasé) ou 400 Volt/50Hz (triphasé).
- Poids propre : 2.275kg.
Prix sur demande.
Contactez-nous
---------------------------------------------------------------------------------------------
ENGEL-HR4035; ASCENSEUR DE STATIONNEMENT DOUBLE HAUTE PORTÉE À 4 COLONNES (4 000 KG.)
ENGEL-HR4035; Ponts élévateurs de stationnement doubles à 4 colonnes :
Il s'agit de l'un de nos élévateurs de stationnement à 4 colonnes, avec ce modèle vous avez la vaiguille qui vous permet de garer des véhicules doubles en hauteur sur les espaces inférieurs des véhicules plus hauts tels que les camping-cars, les bateaux ou les camions, donc spécialement conçus de plain-pied et plus haut dans les halls, et avec un plafond plus élevé, ou lorsqu'un palan est nécessaire après un deuxième niveau, ou les deux.
Si vous n'avez pas la possibilité d'agrandir votre bâtiment en largeur ou en longueur, montez simplement "en hauteur" avec ces ascenseurs de stationnement QuadroParker.
Toute la partie centrale de la plate-forme est étanche à l'eau et aux liquides, car elle ne s'égoutte pas du véhicule ou de la voiture ancienne garée en dessous.
C'est aussi un modèle d'installation extérieure qui est galvanisé à chaud.Tous les modèles sont munis d'une rampe d'accès fixe.
Chaque ascenseur de stationnement est fabriqué, transporté, installé et livré prêt à l'emploi par nos soins
Spécifications techniques:
Capacité de charge : 4 000 kg. !!!
Hauteur de colonne : 3900 mm.
Hauteur de levage mesurée SOUS plate-forme double : 3500 mm.
Taille de la plateforme : 5000 mm. (utilisable)
Revêtement en poudre ou galvanisé moyennant un supplément Couleurs standard : anthracite RAL 7016 + orange RAL 2004 (autres couleurs possibles moyennant supplément).
Verrouillage électrique 24 volts.
Entraînement : 4 010 volts/50 Hz (triphasé)
Poids propre : 1 885 kg.
Prix sur demande
--------------------------------------------------------------------------------------------------------------------
Contactez-nous
---------------------------------------------------------------------------------------------
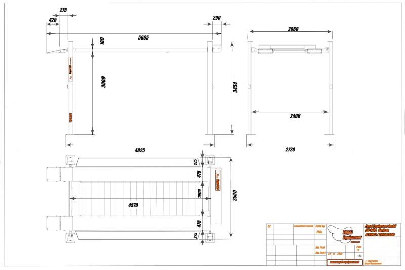
ENGEL-HR30.30 ; ASCENSEUR DE PARC ET DE TRANSPORT À 4 COLONNES (3 000 KG.)
ENGEL-HR30.30 ; Ponts élévateurs de transport et de stationnement à 4 colonnes :
Il s'agit de l'un de nos ascenseurs de stationnement à 4 colonnes.
Avec ce modèle, vous avez l'avantage de pouvoir garer des véhicules doubles en hauteur sur les espaces inférieurs.
Des véhicules plus hauts tels que des mobil-homes, des bateaux ou des camions peuvent être garés, donc spécialement développés pour les halls et des bâtiments avec un plafond légèrement plus haut, ou lorsqu'un ascenseur est nécessaire jusqu'à un deuxième niveau, ou les deux.
Si vous n'avez pas la possibilité d'agrandir votre bâtiment en largeur ou en longueur, montez simplement "en hauteur" avec ces ascenseurs de stationnement de transport.
Toute la partie centrale de la plate-forme est étanche à l'eau et aux liquides, de sorte qu'elle ne coule pas du véhicule ou de la voiture ancienne garée en dessous.
Il existe également un modèle extérieur galvanisé à chaud, tous les modèles sont équipés d'une rampe fixe.
Chaque ascenseur de stationnement est fabriqué, transporté, installé et livré prêt à l'emploi par nos soins
Spécifications techniques:
Capacité de charge : 3 000 kg.
Hauteur de la colonne : 3454 mm
Hauteur de levage mesurée SOUS plate-forme double : 3000 mm.
Largeur plateforme : 2200mm. (utilisable)
Largeur de passage : 2406 mm. Longueur de la plate-forme : 4570 mm. (utilisable)
Revêtement en poudre ou galvanisé moyennant un supplément Couleurs standard : anthracite RAL 7016 + orange RAL 2004 (autres couleurs possibles moyennant supplément).
Verrouillage électrique 24 volts.
Entraînement : 220 volts/50 Hz (monophasé), 2,2 kW.
Poids propre : 1 078 kg.
Tarifs sur demande.
-------------------------------------------------------------------------------------------------------------------
Contactez-nous
---------------------------------------------------------------------------------------------
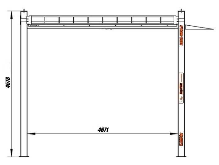
ENGEL-HR50.4 ; ASCENSEUR DE PARC ET DE TRANSPORT À 4 COLONNES (5 000 KG.)
ENGEL-HR50.4 ; Ponts élévateurs de transport et de stationnement à 4 colonnes :
Il s'agit de l'un de nos ascenseurs de stationnement à 4 colonnes.
Avec ce modèle, vous avez l'avantage de pouvoir garer des véhicules doubles en hauteur sur les espaces inférieurs. Des véhicules plus hauts tels que des mobil-homes, des bateaux ou des camions peuvent être garés, donc spécialement développés pour les halls et des bâtiments avec un plafond légèrement plus haut, ou lorsqu'un ascenseur est nécessaire jusqu'à un deuxième niveau, ou les deux.
Si vous n'avez pas la possibilité d'agrandir votre bâtiment en largeur ou en longueur, montez simplement en hauteur" avec ces ascenseurs de parking QuadroParker.
Toute la partie centrale de la plate-forme est étanche à l'eau et aux liquides, de sorte qu'elle ne coule pas du véhicule ou de la voiture ancienne garée en dessous.
Il existe également un modèle extérieur galvanisé à chaud, tous les modèles sont équipés d'une rampe fixe.
Chaque ascenseur de stationnement est fabriqué, transporté, installé et livré prêt à l'emploi par nos soins
Spécifications techniques:
Capacité de charge : 5 000 kg. !!!
Hauteur de la colonne : 4578 mm
Hauteur de levage mesurée SOUS plate-forme double : 4000 mm.
Largeur de plate-forme : 3000 mm. (utilisable)
Largeur de passage : 3288 mm.
Longueur de la plate-forme : 5000 mm. (utilisable)
Revêtement en poudre ou galvanisé moyennant un supplément Couleurs standard : anthracite RAL 7016 + orange RAL 2004 (autres couleurs possibles moyennant supplément).
Verrouillage électrique 24 volts.
Entraînement : 400 volts/50 Hz (triphasé), 4,0 kW.
Poids propre : 1 992 kg.
Tarifs sur demande.
--------------------------------------------------------------------------------------------------------------------
Contactez-nous
---------------------------------------------------------------------------------------------
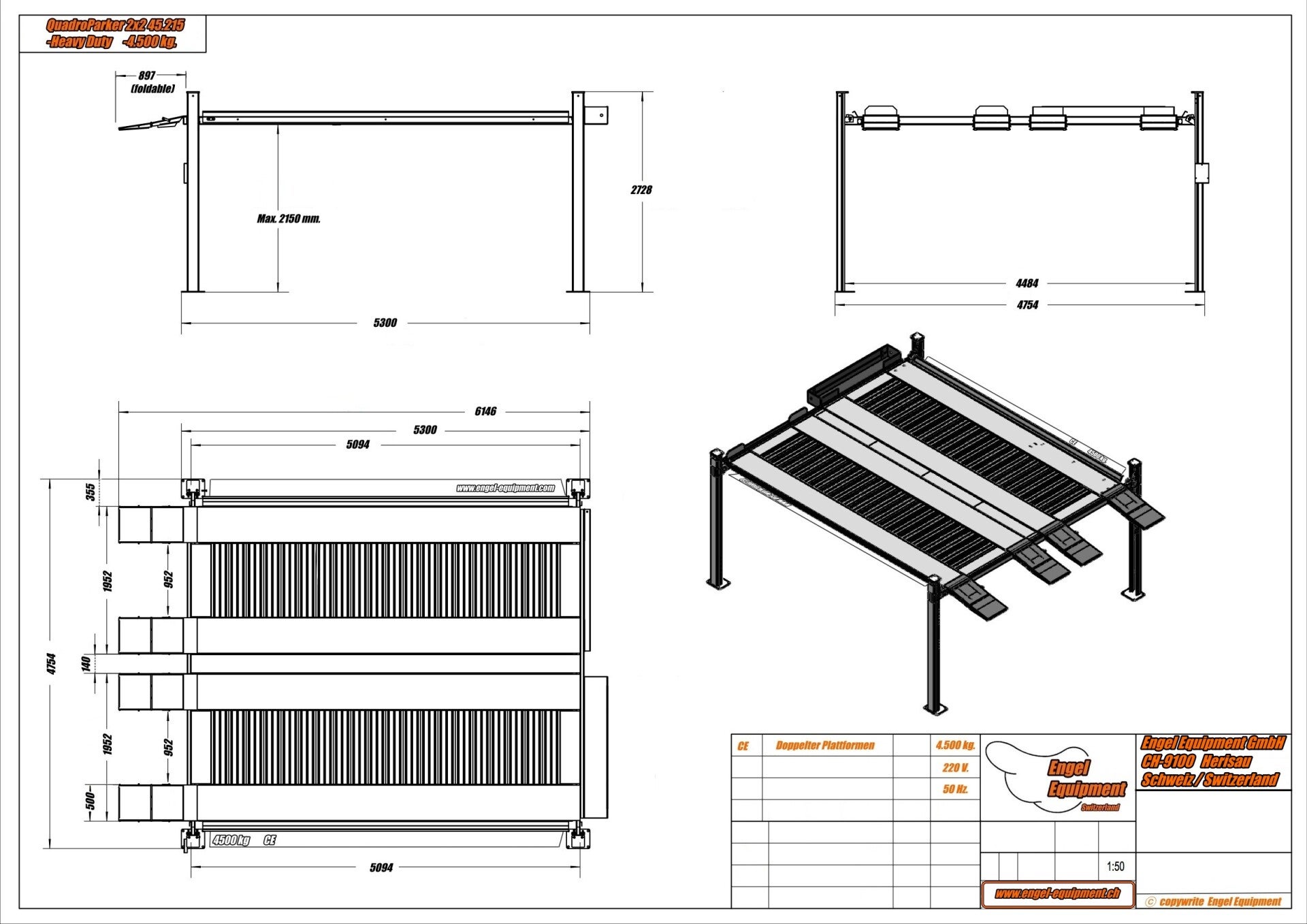
QUADROPARKER 2X2 50.200; ÉLÉVATEUR DE STATIONNEMENT DOUBLE À 4 COLONNES (5 000 KG.)
QUADROPARKER 2X2 45.215; ÉLÉVATEUR DE STATIONNEMENT DOUBLE À 4 COLONNES (4,500KG.)
QUADROPARKER 2X2 40.500; ÉLÉVATEUR DE STATIONNEMENT DOUBLE À 4 COLONNES (4 000 KG.)
QUADROPARKER 2X2 50.200; ÉLÉVATEUR DE STATIONNEMENT DOUBLE À 4 COLONNES (5 000 KG.)
Quadro Parker 2x2 50.200 ; Ascenseurs de stationnement doubles à 4 colonnes :
C'est l'un de nos ascenseurs de stationnement Quadro à 4 colonnes.
nous avons 3 "modèles standard" et aussi de nombreuses offres spéciales si vous le souhaitez, avec ce modèle (notre plus petit), vous avez l'avantage de pouvoir garer des véhicules doubles dans les espaces limités autour de nombreux véhicules (location d'hiver par exemple) donc spécialement développé pour les halls où plusieurs sont installés (voitures de collection) ou où un ascenseur est nécessaire pour le stockage, ou les deux.
Toute la partie centrale de la plate-forme est étanche à l'eau et aux liquides, de sorte qu'elle ne coule pas du véhicule ou de la voiture ancienne garée en dessous.
Il existe également un modèle extérieur galvanisé à chaud, tous les modèles sont équipés de rampes rabattables.
Chaque ascenseur de stationnement est fabriqué, transporté, installé et livré prêt à l'emploi par nos soins
Caractéristiques techniques QuadroParker 2x2 50.200 :
Capacité de charge : 5 000 kg. !!!
Hauteur de la colonne : 2578 mm
Hauteur de levage mesurée SOUS plate-forme double : 2000 mm.
Largeur plateforme : 4400mm. (utilisable)
Longueur de la plate-forme : 4794 mm. (utilisable)
Revêtement en poudre ou galvanisé moyennant un supplément Couleurs standard : anthracite RAL 7016 + orange RAL 2004 (autres couleurs possibles moyennant supplément).
Verrouillage électrique 24 volts.
Entraînement : 220 volts/50 Hz (monophasé)
Poids net : 1 477 kg.
Tarifs sur demande
-------------------------------------------------------------------------------------------------------------------
Contactez-nous
---------------------------------------------------------------------------------------------
QUADROPARKER 2X2 45.215; ÉLÉVATEUR DE STATIONNEMENT DOUBLE À 4 COLONNES (4,500KG.)
Caractéristiques techniques QuadroParker 2x2 45.215 :
Capacité de charge : 4 500 kg. !!!
Hauteur de la colonne : 2728 mm
Hauteur de levage mesurée SOUS plate-forme double : 2150 mm.
Largeur plateforme : 4480mm. (utilisable)
Longueur de la plate-forme : 5094 mm. (utilisable)
Revêtement en poudre ou galvanisé moyennant un supplément Couleurs standard : anthracite RAL 7016 + orange RAL 2004 (autres couleurs possibles moyennant supplément).
Verrouillage électrique 24 volts.
Entraînement : 220 volts/50 Hz (monophasé)
Poids propre : 1 602 kg.
Tarifs sur demande.
--------------------------------------------------------------------------------------------------------------------
Contactez-nous
---------------------------------------------------------------------------------------------
QuadroParker 2x2 40.500 ; Ascenseurs de stationnement doubles à 4 colonnes :
Caractéristiques techniques QuadroParker 2x2 40 500 :
Capacité de charge : 4 000 kg. !!!
Hauteur de la colonne : 2678 mm
Hauteur de levage mesurée SOUS plate-forme double : 2100 mm.
Largeur plateforme : 5000mm. (utilisable) Longueur de la plate-forme : 5000 mm. (utilisable)
Revêtement en poudre ou galvanisé moyennant un supplément Couleurs standard : anthracite RAL 7016 + orange RAL 2004 (autres couleurs possibles moyennant supplément).
Verrouillage électrique 24 volts.
Entraînement : 220 volts/50 Hz (monophasé)
Poids propre : 1 589 kg.
Tarifs sur demande.
-------------------------------------------------------------------------------------------------------------------
Contactez-nous
---------------------------------------------------------------------------------------------
ENGEL-2130 ; Ascenseur de stationnement robuste à 4 colonnes (3 000 kg.)










ENGEL-2130.210A & ENGEL-2130.210B Ponts élévateurs à 4 colonnes pour charges lourdes :
L'ascenseur de stationnement à 4 colonnes !, Avec ce modèle/conception, vous disposez de l'un des ascenseurs de stationnement les plus solides qui soit ! N'importe quel propriétaire y survivra !!
Avec un support latéral très robuste d'une épaisseur de matériau de 8,0 mm et son hydraulique latérale qui est tirée, non poussée, avec des chaînes industrielles doubles
Un système entièrement hydraulique et sans entretien garantit une course très précise, ces ascenseurs de parking PREMIUM sont garantis 5 ans !
nous avons deux plateformes "standard" disponibles.
La version A = Toute la partie centrale de la plate-forme est étanche à l'eau et aux liquides, de sorte qu'elle ne goutte pas sur le véhicule ou la voiture classique garée en dessous.
la version B = munie de deux voies, et au milieu d'une plaque profilée ou de tôles amovibles. Pour les travaux d'entretien sur le véhicule comme pour les "élévateurs normaux à 4 colonnes", la plate-forme peut même être préparée pour un ou plusieurs lève-essieux.
Il existe également un modèle d'extérieur galvanisé à chaud, tous les modèles ont des rampes d'accès.Chaque plate-forme de stationnement est fabriquée, transportée, installée et livrée prête à l'emploi par nos soins
Spécifications techniques: Engel 2130.210A
- Capacité de charge : 3 000 kg. !!! (Certifié, mais techniquement bien plus !.)
- Hauteur de la colonne : 2578 mm.
- Hauteur de levage mesurée SOUS la double plate-forme : 2100 mm.
- Largeur de la plate-forme : 2150 mm. (Utilisable)
- Longueur de la plate-forme : 4200 mm. (Utilisable)
- Revêtement en poudre ou galvanisé à un coût supplémentaire
- Coloris standards : Anthracite RAL 7016 + Orange RAL 2004 (autres coloris possibles en supplément).
- Serrure électrique 24 volts.
- Entraînement : 220 volts / 50 Hz (monophasé)
- Poids mort : 1 223 kg. (2130-210A), 1,298kg (2130-210B)
Prix sur demande.
--------------------------------
Contactez-nous
---------------------------------------------------------------------------------------------
ENGEL-2130.250 ; Ascenseur de stationnement robuste à 4 colonnes
(3 000 kg.)









ENGEL-2130.250A & ENGEL-2130.250B Ponts élévateurs à 4 colonnes pour charges lourdes :
L'ascenseur de stationnement à 4 colonnes !, Avec ce modèle/conception, vous disposez de l'un des ascenseurs de stationnement les plus solides qui soit ! N'importe quel propriétaire y survivra !!
Avec un support latéral très robuste d'une épaisseur de matériau de 8,0 mm et son hydraulique latérale qui est tirée, non poussée, avec des chaînes industrielles doubles
Un système entièrement hydraulique et sans entretien garantit une course très précise, ces ascenseurs de parking PREMIUM sont garantis 5 ans !
nous avons deux plateformes "standard" disponibles.
La version A = Toute la partie centrale de la plate-forme est étanche à l'eau et aux liquides, de sorte qu'elle ne goutte pas sur le véhicule ou la voiture classique garée en dessous.
la version B = munie de deux voies, et au milieu d'une plaque profilée ou de tôles amovibles. Pour les travaux d'entretien sur le véhicule comme pour les "élévateurs normaux à 4 colonnes", la plate-forme peut même être préparée pour un ou plusieurs lève-essieux.
Il existe également un modèle d'extérieur galvanisé à chaud, tous les modèles ont des rampes d'accès.
Chaque plate-forme de stationnement est fabriquée, transportée, installée et livrée prête à l'emploi par nos soins
Spécifications techniques: Engel 2130.250A / 2130.250B
- Capacité de charge : 3 000 kg. !!! (Certifié, mais techniquement bien plus !.)
- Hauteur de la colonne : 2578 mm.
- Hauteur de levage mesurée SOUS la double plate-forme : 2100 mm.
- Largeur de la plate-forme : 2500 mm. (Utilisable)
- Largeur de passage : 2576 mm. !!!
- Longueur de la plate-forme : 4200 mm. (Utilisable)
- Revêtement en poudre ou galvanisé à un coût supplémentaire
- Coloris standards : Anthracite RAL 7016 + Orange RAL 2004 (autres coloris possibles en supplément).
- Serrure électrique 24 volts.
- Entraînement : 220 volts / 50 Hz (monophasé)
- Poids mort : 1 331 kg. (2130.250A), 1.406kg. (2130.250B)
Prix sur demande.
-------------------------------
Contactez-nous
---------------------------------------------------------------------------------------------
ENGEL-2130.2x2 / 5000 ; Plateforme de stationnement QuadroParker robuste à 4 montants (5000 kg.)








ENGEL-2130.2x2 / 5000 ; Ascenseurs de stationnement QuadroParker robustes à 4 colonnes :
L'ascenseur de stationnement à 4 colonnes !, Avec ce modèle/conception, vous disposez de l'un des ascenseurs de stationnement les plus solides qui soit ! N'importe quel propriétaire y survivra !!
Avec un support latéral très robuste d'une épaisseur de matériau de 8,0 mm et son hydraulique latérale qui est tirée, non poussée, avec des chaînes industrielles doubles
Un système entièrement hydraulique et sans entretien garantit une course très précise, ces ascenseurs de parking PREMIUM sont garantis 5 ans !
Nous disposons de deux rampes "standard" Stationnement double avec les véhicules SUV les plus gros et les plus lourds du marché (Dodge Ram, Chevy Escalade, etc.)Il existe également un modèle d'extérieur galvanisé à chaud, tous les modèles ont des rampes d'accès.Chaque plate-forme de stationnement est fabriquée, transportée, installée et livrée prête à l'emploi par nos soins
Spécifications techniques: Engel 2130.2x2/5000
- Capacité de charge : 5 000 kg. !!! (Certifié, mais techniquement bien plus !.)
- Hauteur de la colonne : 2578 mm.
- Hauteur de levage mesurée SOUS la double plate-forme : 2100 mm.
- Largeur de la plate-forme : 4320 mm. (Utilisable)
- Largeur de passage : 4500 mm. !!!
- Longueur de la plate-forme : 4900 mm. (Utilisable)
- Revêtement en poudre ou galvanisé à un coût supplémentaire
- Coloris standards : Anthracite RAL 7016 + Orange RAL 2004 (autres coloris possibles en supplément).
- Serrure électrique 24 volts.
- Entraînement : 220 volts / 50 Hz (monophasé)
- Poids mort : 2.114kg.
Prix sur demande.
-------------------------------
Contactez-nous
---------------------------------------------------------------------------------------------
ENGEL-2130.2x2 / 6000; Pont élévateur de parking à 4 colonnes Heavy Duty QuadroParker (6000kg.)








ENGEL-2130.2x2 / 6000 ; Ascenseurs de stationnement QuadroParker robustes à 4 colonnes :
-Bien mieux Meilleur !!!.
L'ascenseur de stationnement à 4 colonnes !, Avec ce modèle/conception, vous disposez de l'un des ascenseurs de stationnement les plus solides qui soit ! N'importe quel propriétaire y survivra !!
Avec un support latéral très robuste d'une épaisseur de matériau de 8,0 mm et son hydraulique latérale qui est tirée, non poussée, avec des chaînes industrielles doubles
Un système entièrement hydraulique et sans entretien garantit une course très précise, ces ascenseurs de parking PREMIUM sont garantis 5 ans !
Nous disposons de deux rampes "standard" Stationnement double avec les véhicules SUV les plus gros et les plus lourds du marché (Dodge Ram, Chevy Escalade, etc.)Il existe également un modèle d'extérieur galvanisé à chaud, tous les modèles ont des rampes d'accès.Chaque plate-forme de stationnement est fabriquée, transportée, installée et livrée prête à l'emploi par nos soins
Spécifications techniques: Engel 2130.2x2/6000
- Capacité de charge : 6 000 kg. !!! (Certifié, mais techniquement bien plus !.)
- Hauteur de la colonne : 2578 mm.
- Hauteur de levage mesurée SOUS la double plate-forme : 2100 mm.
- Largeur de la plate-forme : 4500 mm. (Utilisable)
- Largeur de passage : 4650 mm. !!!
- Longueur de la plate-forme : 5300 mm. (Utilisable)
- Revêtement en poudre ou galvanisé à un coût supplémentaire
- Coloris standards : Anthracite RAL 7016 + Orange RAL 2004 (autres coloris possibles en supplément).
- Serrure électrique 24 volts.
- Entraînement : 220 volts / 50 Hz (monophasé)
- Poids mort : 2.289kg
Prix sur demande.
------------------------